Floor Joist Blocking Code

Floor Systems Deflection And Vibration Floor Vibration 2 Roof Trusses Flooring Basement Design

Floor Systems Deflection And Vibration Floor Vibration 2 Roof Trusses Flooring Basement Design

Use Blocking Between Joists Over Beams And Wherever Required By Local Building Code Cedar Wood Fence Hot Tub Deck Deck

Use Blocking Between Joists Over Beams And Wherever Required By Local Building Code Cedar Wood Fence Hot Tub Deck Deck

Raised Floor Framing Gif 316 228 In 2020 Floor Framing Framing Construction Pier And Beam Foundation

Raised Floor Framing Gif 316 228 In 2020 Floor Framing Framing Construction Pier And Beam Foundation

Build Deck Rail 4x4 Guard Post With Band Joist Blocking For Simpson Strong Tie Dtt2z Post Connectors Diy Deck Deck Building Plans Deck Construction

Build Deck Rail 4x4 Guard Post With Band Joist Blocking For Simpson Strong Tie Dtt2z Post Connectors Diy Deck Deck Building Plans Deck Construction

Wall Framing Blocking Installation Basement Walls Concrete Basement Walls Frames On Wall

Wall Framing Blocking Installation Basement Walls Concrete Basement Walls Frames On Wall

Fireblocking Question W Pics Construction Diy Cavity Wall Building Concept

Fireblocking Question W Pics Construction Diy Cavity Wall Building Concept

Fireblocking Question W Pics Construction Diy Cavity Wall Building Concept

In addition to providing lateral support blocking helps transfer weight to adjacent joists so that the floor acts as a unified system.

Floor joist blocking code. Joists shall be supported laterally at the ends by full depth solid blocking not less than 2 inches 51 mm nominal in thickness. Since the span is short enough that even 2x8 s would have met the code it would be pointless to put blocking at the mid span of 2x10 s since they are already more than stiff enough. Building code requires the use of blocking for floor joists that exceed 2 inches in width by 12 inches in depth.

The block is nothing more than a 2 x 6 or fire rated drywall turned flat and attached to the bottom of the first floor joists. Blocking also needs to be provided at the supporting end of a joist. The international codes i codes are the widely accepted comprehensive set of model codes used in the us and abroad to help ensure the engineering of safe sustainable affordable and resilient structures.

Fire blocking must be installed at code mandated locations in concealed cavities see typical fireblocking locations next page. It must be secured to the end of each joist with three 10 x 3 inch screws or nails. Floor joists can also be attached to a full depth header rim joist or to an adjacent stud.

It acts as a cap at the top of your framed basement wall to contain any fire in the wall long enough to alert the smoke alarms in the basement see illustration at bottom. Or by attachment to a full depth header band or rim joist or to an adjoining stud or shall be otherwise provided with lateral support to prevent rotation. Floor joist blocking the irc requires mid span blocking for joists with a width to depth ratio greater than 1 to 6 which means that even 2x12 s don t need mid span blocking.

Solid wood blocking helps reduce up or down movement and the twisting of joists. As long as sheathing is installed on the back side. Prolong the health of your framing with joist tape.

Also note the blocking between floor joists. Limiting joist movement also helps prevent gapping between deck boards for a uniform finish. Section r502 7 of the 2009 international residential code specifies that joists must be laterally supported by solid blocking that s not less than 2 inches thick and the full depth of the joist.

Deck Cantilever Rules And Limits How Far Can It Span Decks Com Building A Deck Diy Deck Deck Construction

Deck Cantilever Rules And Limits How Far Can It Span Decks Com Building A Deck Diy Deck Deck Construction

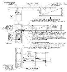
Fire Blocking Building Code Roof Detail Coding

Fire Blocking Building Code Roof Detail Coding

Shower Framing Plumbing Reinforcing Floor Joists With Solid Wood Blocking Bathtub Shower Remodel Walk In Shower Shower Remodel

Shower Framing Plumbing Reinforcing Floor Joists With Solid Wood Blocking Bathtub Shower Remodel Walk In Shower Shower Remodel

Simpson Deck Ties Are A Great Way To Reinforce Your Deck Check Out Their Website Building A Deck Deck Building Plans Deck

Simpson Deck Ties Are A Great Way To Reinforce Your Deck Check Out Their Website Building A Deck Deck Building Plans Deck

Fire Blocking How To Fireblock Wood Framing Framing Basement Walls Basement Remodeling Building A Shed

Fire Blocking How To Fireblock Wood Framing Framing Basement Walls Basement Remodeling Building A Shed

Diagram Of Window Or Door Framing For Rough Opening Using 2x12 Header Home Additions Residential Doors Windows

Diagram Of Window Or Door Framing For Rough Opening Using 2x12 Header Home Additions Residential Doors Windows

Reinforcing Deck Rim Or Band Joists Decks Com Building A Deck Deck Building Plans Deck Design

Reinforcing Deck Rim Or Band Joists Decks Com Building A Deck Deck Building Plans Deck Design

Explore A Searchable Database Of Us Construction And Building Code Code Regulations Are Consolidated By State And Ci Construction Floor Framing Seismic Design

Explore A Searchable Database Of Us Construction And Building Code Code Regulations Are Consolidated By State And Ci Construction Floor Framing Seismic Design

Can Joists Be Trimmed To Create A Lowered Floor Fine Homebuilding Building A House Flooring Fine Home Building

Can Joists Be Trimmed To Create A Lowered Floor Fine Homebuilding Building A House Flooring Fine Home Building

9 Common Subfloor Mistakes And How To Avoid Them Weyerhaeuser Flooring Construction Adhesive Repair Floors

9 Common Subfloor Mistakes And How To Avoid Them Weyerhaeuser Flooring Construction Adhesive Repair Floors

Wooden Floor Framing Wooden Flooring Floor Framing Wooden House Design

Wooden Floor Framing Wooden Flooring Floor Framing Wooden House Design

Diagonal Bracing Between Posts And Beams Or Between Posts And Joists Is Needed To Counter Lateral Loads At The Peri Building A Deck Deck Posts Shed Plans 12x16

Diagonal Bracing Between Posts And Beams Or Between Posts And Joists Is Needed To Counter Lateral Loads At The Peri Building A Deck Deck Posts Shed Plans 12x16

Power Joist Construction Details Floor Framing Flooring Frame

Power Joist Construction Details Floor Framing Flooring Frame

Floor Installation Floor Framing Flooring Balloon Frame

Floor Installation Floor Framing Flooring Balloon Frame

Source : pinterest.com