Warehouse Loft Floor Plans

Floor Plan For Warehouse Loft Floor Plans Warehouse Conversion Floor Plans

Floor Plan For Warehouse Loft Floor Plans Warehouse Conversion Floor Plans

Warehouse Style Loft With Stunning Visual Appeal Loft Apartment Industrial Loft Floor Plans Loft Apartment

Warehouse Style Loft With Stunning Visual Appeal Loft Apartment Industrial Loft Floor Plans Loft Apartment

The Abbotsford Warehouse Conversion 12 Loft Floor Plans Warehouse Loft Warehouse Living

The Abbotsford Warehouse Conversion 12 Loft Floor Plans Warehouse Loft Warehouse Living

Join The Industrial Loft Revolution Loft Floor Plans Industrial House Plans Loft Plan

Join The Industrial Loft Revolution Loft Floor Plans Industrial House Plans Loft Plan

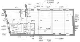
Floor Plan After Restoration Of London Warehouse Loft By Form Design Architecture Warehouse Design Architecture Design Loft Floor Plans

Floor Plan After Restoration Of London Warehouse Loft By Form Design Architecture Warehouse Design Architecture Design Loft Floor Plans

Warehouse Conversion In Surry Hills Homedsgn Warehouse Conversion Warehouse Home Warehouse Loft

Warehouse Conversion In Surry Hills Homedsgn Warehouse Conversion Warehouse Home Warehouse Loft

Warehouse Conversion In Surry Hills Homedsgn Warehouse Conversion Warehouse Home Warehouse Loft

Warehouse floor plans homes floor plans.

Warehouse loft floor plans. Suites are priced from 1 069 900 to 1 799 900. Old warehouse in melbourne turned into a modern green haven. The project is 11 storeys tall and has a total of 29 suites ranging from 961 sq ft to 1674 sq ft.

Warehouse 7 lofts has 10 different floor plans to choose from. Warehouse lofts is designed by kohn partnership architects inc. So all that you intend to do currently is whenever you pick to construct your house just find a specialist with remarkable credentials as well as you make sure.

Warehouse lofts is a new preconstruction condo development by the sher corporation and downing street group located at 191 parliament street in toronto parliament queen. Louis fitness factory churches and much more. Posted on aug 2 2020.

Floor plans oakport office warehouse. Warehouse lofts will be 11 storeys with a total 29 live work lofts. Development is scheduled to be completed in 2022.

The warehouse 7 lofts is just minutes away from. We have two bedroom and three bedroom units for you to select your new home. There are sure to be several units that fit your lifestyle.

Live music sporting venues grocery store parks local pubs sandwich shops movie theaters bowling alleys retail clothing stores coffee shops cleaners the st. The warehouse lofts at seminole heights boasts studio layouts two bedroom apartments and five different loft design options for apartments as unique and individual as their tenants. Amenities at warehouse lofts will include an outdoor rooftop lounge gym pet wash station and lounge.

Warehouse Loft Plans Floor Plans Http Www Kaufmanlofts Com Floorplans Html 4 Loft Floor Plans Small Floor Plans Loft Plan

Warehouse Loft Plans Floor Plans Http Www Kaufmanlofts Com Floorplans Html 4 Loft Floor Plans Small Floor Plans Loft Plan

Old Warehouse Converted Into Spectacular Urban Home Freshome Com Warehouse Conversion Warehouse Home Warehouse Loft

Old Warehouse Converted Into Spectacular Urban Home Freshome Com Warehouse Conversion Warehouse Home Warehouse Loft

7 Swift Simple Ideas Industrial Interior Toilet Industrial Space Wire Baskets Industrial Wood Interior Industrial Loft Floor Plans Small Floor Plans Loft Plan

7 Swift Simple Ideas Industrial Interior Toilet Industrial Space Wire Baskets Industrial Wood Interior Industrial Loft Floor Plans Small Floor Plans Loft Plan

Industrial Chic Loft With Open Plan Interiors In Noho Loft Floor Plans Floor Plan Design Apartment Floor Plans

Industrial Chic Loft With Open Plan Interiors In Noho Loft Floor Plans Floor Plan Design Apartment Floor Plans

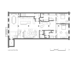
Gallery Of Tribeca Loft Andrew Franz Architect 9 Tribeca Loft Loft Floor Plans Warehouse Loft

Gallery Of Tribeca Loft Andrew Franz Architect 9 Tribeca Loft Loft Floor Plans Warehouse Loft

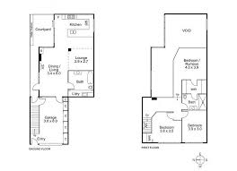
Two Story Warehouse Conversion In Abbotsford Warehouse Conversion Loft Floor Plans Warehouse Loft

Two Story Warehouse Conversion In Abbotsford Warehouse Conversion Loft Floor Plans Warehouse Loft

2 Story Floor Plans Loft House Design Loft Floor Plans One Bedroom House Plans

2 Story Floor Plans Loft House Design Loft Floor Plans One Bedroom House Plans

Modern Floorplans Two Story Warehouse Fabled Environments Modern Floorplansdrivethrurpg Com Warehouse Floor Plan Floor Plans Warehouse Floor

Modern Floorplans Two Story Warehouse Fabled Environments Modern Floorplansdrivethrurpg Com Warehouse Floor Plan Floor Plans Warehouse Floor

Warehouse Style Apartment In Shoreditch London Floor Plans Loft Apartment How To Plan

Warehouse Style Apartment In Shoreditch London Floor Plans Loft Apartment How To Plan

Ridiculous Open Concept Luxury Loft In Soho Floor Plan Layout Loft Floor Plans Hotel Floor Plan

Ridiculous Open Concept Luxury Loft In Soho Floor Plan Layout Loft Floor Plans Hotel Floor Plan

Astounding Warehouse Conversion With Garden Oasis Warehouse Conversion Warehouse Floor Plan Loft Floor Plans

Astounding Warehouse Conversion With Garden Oasis Warehouse Conversion Warehouse Floor Plan Loft Floor Plans

Chic And Wide Loft Style Apartment In Soho Nolita New York 4betterhome Loft Floor Plans Loft Flooring Apartment Floor Plans

Chic And Wide Loft Style Apartment In Soho Nolita New York 4betterhome Loft Floor Plans Loft Flooring Apartment Floor Plans

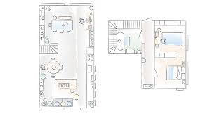
Floor Plan Of The Luxurious London Penthouse Floor Plans Apartment Floor Plans Unique Floor Plans

Floor Plan Of The Luxurious London Penthouse Floor Plans Apartment Floor Plans Unique Floor Plans

Home Tour Maxine And Maxwell S Warehouse Apartment In London Floor Plans Warehouse Plan House Floor Plans

Home Tour Maxine And Maxwell S Warehouse Apartment In London Floor Plans Warehouse Plan House Floor Plans

Source : pinterest.com