Woodshop Floor Plans

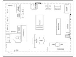
The 8 000 00 Workshop Woodworking Shop Plans Workshop Layout Woodworking Shop Layout

The 8 000 00 Workshop Woodworking Shop Plans Workshop Layout Woodworking Shop Layout

Small Woodshop Layout Unique Small Shop Ideas Woodworking Shop Floor Plans Woodworking Shop La Shop Layout Woodworking Shop Layout Small Woodworking Shop Ideas

Small Woodshop Layout Unique Small Shop Ideas Woodworking Shop Floor Plans Woodworking Shop La Shop Layout Woodworking Shop Layout Small Woodworking Shop Ideas

Woodworking Tools Woodworking Shop Layout Shop Layout Woodworking Workshop Plans

Woodworking Tools Woodworking Shop Layout Shop Layout Woodworking Workshop Plans

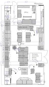
Woodshop Design Layout Woodworking Shop Plans Woodworking Shop Layout Shop Layout

Woodshop Design Layout Woodworking Shop Plans Woodworking Shop Layout Shop Layout

Dream It Do It Woodworking Shop Plans Workshop Layout Shop Layout

Dream It Do It Woodworking Shop Plans Workshop Layout Shop Layout

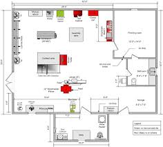
The Challenge Create A One Car Garage Shop Equipped With Loads Of Tools And Lots Of Smart Stora Garage Workshop Layout Woodworking Shop Layout Workshop Layout

The Challenge Create A One Car Garage Shop Equipped With Loads Of Tools And Lots Of Smart Stora Garage Workshop Layout Woodworking Shop Layout Workshop Layout

The Challenge Create A One Car Garage Shop Equipped With Loads Of Tools And Lots Of Smart Stora Garage Workshop Layout Woodworking Shop Layout Workshop Layout

So we re hoping to.

Woodshop floor plans. While this article is focused on some other products you may not have considered here are a few of the basic tools any woodshop needs. For instance i have a basement shop that s not tiny but it is still space constrained so worrying about the optimal layout for my ts jointer planer is a little off the mark since i don t have to walk very far. Workbench table saw outfeed table miter saw chopsaw bandsaw dust collector for dust collection drill press hand tools lumber rack for short and long boards.

Woodworking shop layout introduction. Currently we share a space in a multi use studio on the third floor of the building but the woodworking program is showing a fair amount of interest. Homeowners can now enjoy that benefit too.

Last week i started in on my new shop layout by tearing down an old workbench and getting ready to move some tools around so this week that s exactly what i did i moved all my tools into their prospective places. For laying out a workshop floor plan this is what s required. Do it to scale.

To get started on my woodworking shop layout there were a few preliminary things that had to be done before i could actually move anything. A post at woodnet called garage woodshop questions the whole thread is an awesome resource for anyone planning a new woodshop in their garage. I have storage space for lumber tens of board feet not hundreds.

I have dedicated space for both power and hand tools. Drywall is a thing of the past for shop walls. Learn several more upgrades that take your shop from drab to dramatic.

Like all things woodworking they need to be tweaked so that it s right for the individual. Before digging into our list of 17 garage woodshop plans i wanted to cite my inspiration for this collection. Looking at my own woodshop s floor plan you can see i have almost everything on my large woodshop list.

Shop Space Where You Are Part Ii Garage Workshop Plans Workshop Layout Garage Workshop Layout

Shop Space Where You Are Part Ii Garage Workshop Plans Workshop Layout Garage Workshop Layout

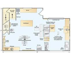
Drawing A Workshop Floor Plan Workshop Layout Shop Layout Woodworking Shop Layout

Drawing A Workshop Floor Plan Workshop Layout Shop Layout Woodworking Shop Layout

Woodshop Floor Plans Workshop Layout On Pinterest Wood Shops Woodworking Shop And Woodwork Small Floor Pl Workshop Layout Woodworking Shop Layout Shop Layout

Woodshop Floor Plans Workshop Layout On Pinterest Wood Shops Woodworking Shop And Woodwork Small Floor Pl Workshop Layout Woodworking Shop Layout Shop Layout

A Fully Loaded Workshop Play Space Woodworking Shop Plans Garage Workshop Layout Garage Workshop Plans

A Fully Loaded Workshop Play Space Woodworking Shop Plans Garage Workshop Layout Garage Workshop Plans

Bee Keepers Wood Shop Fine Woodworking Woodworking Shop Plans Workshop Plans Workshop Layout

Bee Keepers Wood Shop Fine Woodworking Woodworking Shop Plans Workshop Plans Workshop Layout

Discover How We Took A 12x16 Basement Space And Outfitted It Into A Feature Filled Shop Woodworking Shop Layout Workshop Layout Shop Layout

Discover How We Took A 12x16 Basement Space And Outfitted It Into A Feature Filled Shop Woodworking Shop Layout Workshop Layout Shop Layout

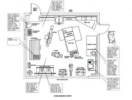
New Woodshop Layout Advice Woodworking Shop Layout Workshop Layout Shop Layout

New Woodshop Layout Advice Woodworking Shop Layout Workshop Layout Shop Layout

Wood Shop Layouts Small Woodworking Shop Layout Plans Shop Layout Woodworking Shop Layout Small Woodworking Shop Ideas

Wood Shop Layouts Small Woodworking Shop Layout Plans Shop Layout Woodworking Shop Layout Small Woodworking Shop Ideas

Johns Two Car Garage Wood Shop Before The Real Shop Fine Woodworking Garage Woodshop Woodworking Plans Beginner Woodworking Shop Layout

Johns Two Car Garage Wood Shop Before The Real Shop Fine Woodworking Garage Woodshop Woodworking Plans Beginner Woodworking Shop Layout

Help With Shop Layout Workshop Layout Shop Layout Garage Workshop Layout

Help With Shop Layout Workshop Layout Shop Layout Garage Workshop Layout

Imagine A Workshop Where You Can Find Every Tool Jig And Board Almost Without Looking Whethe Shop Layout Woodworking Shop Layout Woodworking Workshop Layout

Imagine A Workshop Where You Can Find Every Tool Jig And Board Almost Without Looking Whethe Shop Layout Woodworking Shop Layout Woodworking Workshop Layout

Small Woodshop Setup Ideas Workshop Layout Planning Stu S Shed Workshop Layout Plans Workshop Layout Shop Layout

Small Woodshop Setup Ideas Workshop Layout Planning Stu S Shed Workshop Layout Plans Workshop Layout Shop Layout

Image Result For 12 X 16 Wood Shop Plans Woodworking Shop Layout Woodworking Shop Shop Layout

Image Result For 12 X 16 Wood Shop Plans Woodworking Shop Layout Woodworking Shop Shop Layout

Woodturning Workshop Layouts Garage Workshop Layout Workshop Layout Woodworking Shop Layout

Woodturning Workshop Layouts Garage Workshop Layout Workshop Layout Woodworking Shop Layout

Source : pinterest.com